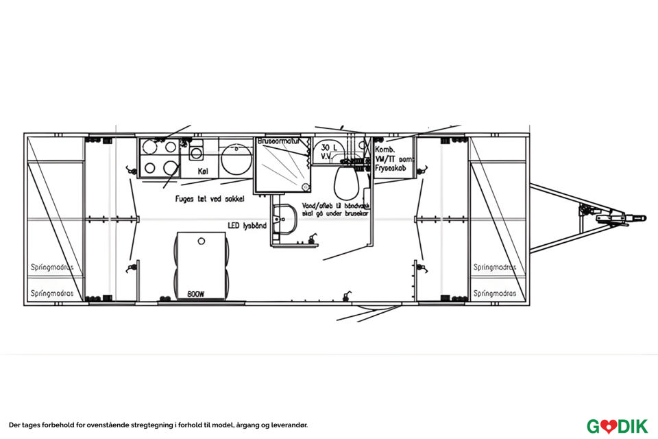
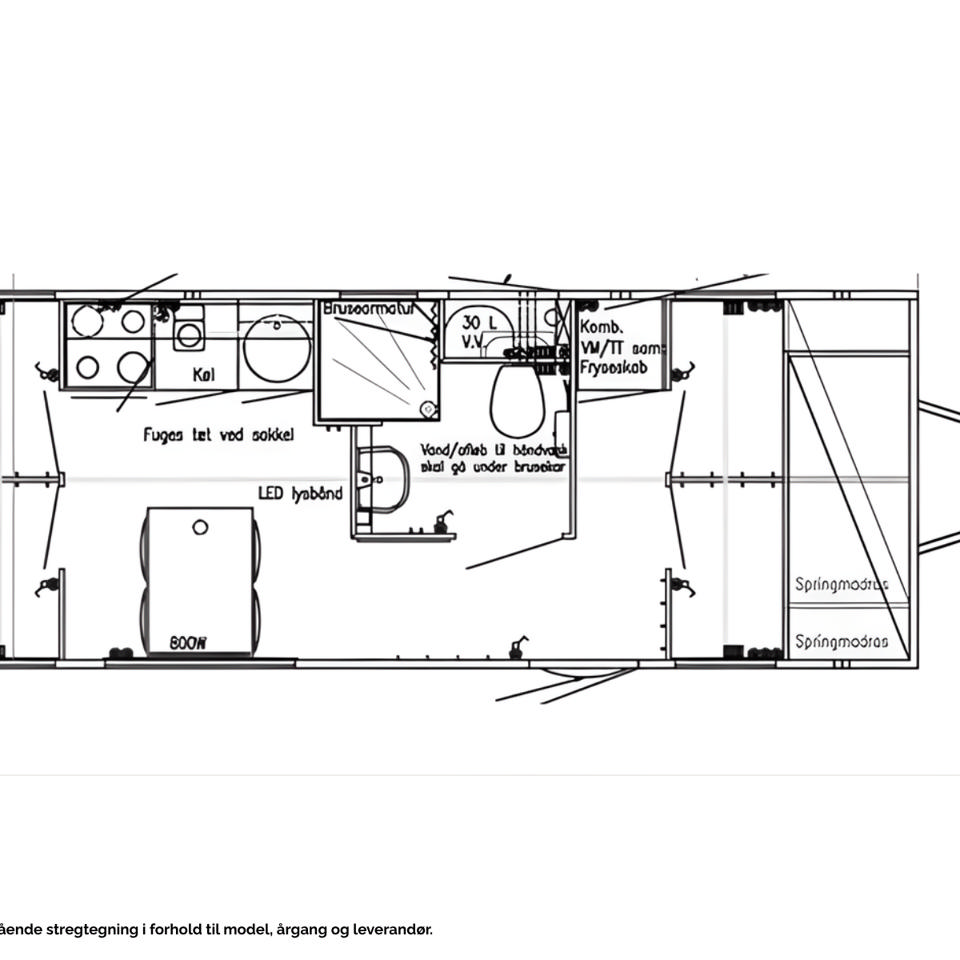
Beboelsesvogn "Håndværker"
Varenr. 04816

Vil du lykkes med dit projekt?
Vores team af eksperter rådgiver dig om alt fra planlægning til levering – helt gratis og uforpligtende.
| Number: | 04816 |
|---|---|
| Højde (cm): | 315 cm |
| Længde (cm): | 730 cm |
| Bredde (cm): | 250 cm |
| Synsfri sammenkobling (kg): | 2300 |
| Vandtilslutning: | 3/4” Nito kobling |
| Afløbskværn, antal: | 1 |
| Afløbskværn, pumpelængde (m): | 50 |
| Afløbstilslutning: | 1” Nito kobling |
| Antal bad: | 1 |
| Antal håndvaske: | 1 |
| Antal køkken: | 1 |
| Antal toiletter: | 1 |
Inventar | |
| Kapacitet (tekst): | 4 personer |
| Kugletræk (mm): | 50 |
| Madras størrelse (tekst): | 80x200 cm |
| Max. effektforbrug (W): | 17582 |
Robust beboelsesvogn til håndværkere med fire individuelle sovepladser, køkken og bad. Designet til praktisk brug og hurtig opsætning. |



















