Beredskabskontor
Varenr. 05125

Vil du lykkes med dit projekt?
Vores team af eksperter rådgiver dig om alt fra planlægning til levering – helt gratis og uforpligtende.
| Number: | 05125 |
|---|---|
| Synsfri sammenkobling (kg): | 2600 |
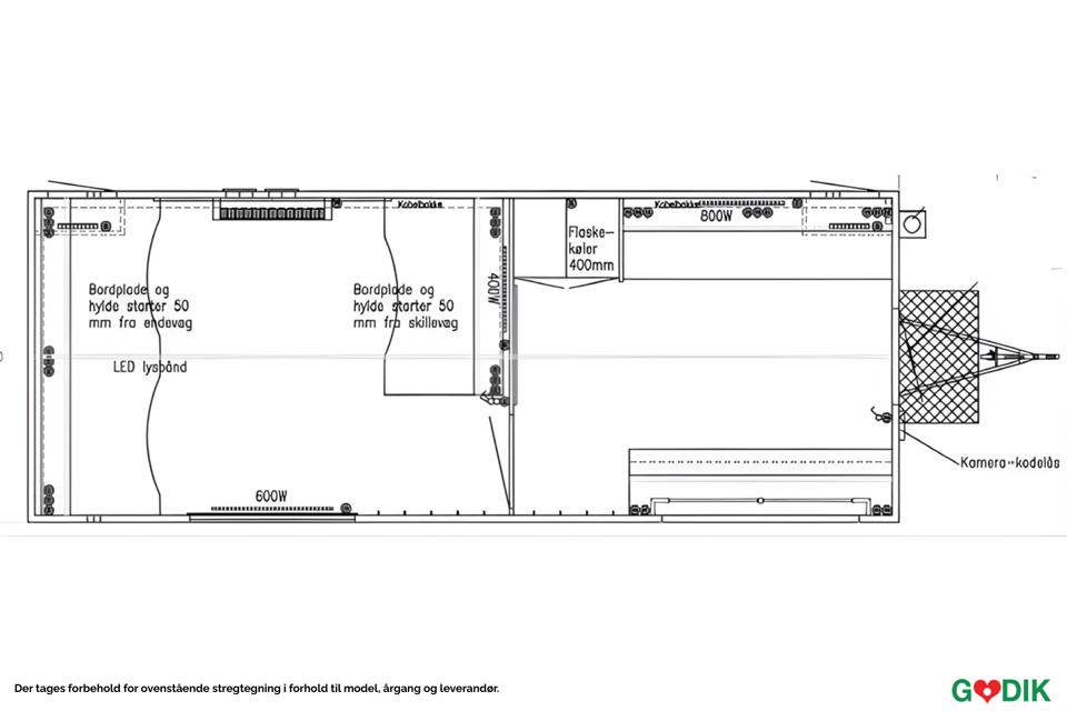
| Teleskopmast: 7 meter hydraulisk med LED lamper, antenne eller WiFi parabol/access point. Inventar 2 stk. 42" og 1 stk. 46" skærme, 3 stk. 22" PC monitor, 3 stk. PC til overvågning og afvikling, mus og tastatur,backupstrøm/aircondition, køleskab, højskab, affaldsstativ, 4 arbejdspladser med kontorstole.Vognen er klargjort med netværk til kameraovervågning og radio GPS tracking.Ekstraudstyr: Kameraovervågning PTZ (varenr. 50217) og opsætning, servicering, nedtagning. Medfølger 25 meter elkabel 400V/16A. | |
| Kugletræk (mm): | 50 |
| Udvendigt mål, bredde (cm): | 250 |
| Udvendigt mål, højde (cm): | 295 |
| Udvendigt mål, længde (cm): | 660 |
Fuldt udstyret beredskabskontor fra Godik – ideelt til sikkerhed på festivaler, events og sportsarrangementer. Med 4 overvågningspladser, netværk til kameraer og GPS-tracking samt mulighed for drift ved strømsvigt får du et professionelt og stabilt kontrolpunkt på pladsen. |









