Produktionsvogn
Varenr. 05116

Vil du lykkes med dit projekt?
Vores team af eksperter rådgiver dig om alt fra planlægning til levering – helt gratis og uforpligtende.
| Number: | 05116 |
|---|---|
| Synsfri sammenkobling (kg): | 2000 |
| Vandtilslutning: | 3/4” Nito kobling |
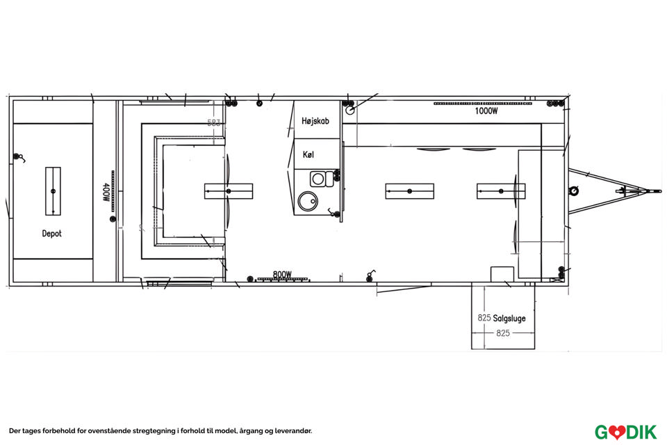
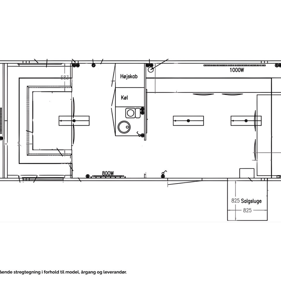
Beskrivelse Produktionsvognen er udstyret med 1 skrivebord med 2 overhylder, 2 stole, gulvgennemføring til kabler, 1 affaldsspand,dankortterminaler, klapbordplade med 2 overhylder med plads til en flightcase, f.eks. med en Motorola anlog repeater,40 stk. elstik foroplader til radio. Inventar i køkken/opholdsrum Køkkenhøjskab, flaskekøler, kaffemaskine, mikroovn, vask med afløbskværn, 1 affaldsspand, hjørnesofa/dobbeltseng, tv. Inventar i lagerrum 2 hylder på 3 sider. Medfølger 25 meter vandslange, afløbsslange og elkabel 400V/16A. | |
| Afløbskværn, antal: | 1 |
| Afløbskværn, pumpelængde (m): | 50 |
| Afløbstilslutning: | 1” Nito kobling |
| Antal håndvaske: | 1 |
| Kugletræk (mm): | 50 |
| Udvendigt mål, bredde (cm): | 250 |
| Udvendigt mål, højde (cm): | 295 |
| Udvendigt mål, længde (cm): | 730 |
Godiks produktionsvogn giver dig fuldt kontrolrum på hjul – med GPS-sporing af medarbejdere, mulighed for overvågning og komplet radiokommunikation. En fuldt udstyret vogn til sikker og effektiv eventstyring. |













