Security produktionsvogn
Varenr. 05119

Vil du lykkes med dit projekt?
Vores team af eksperter rådgiver dig om alt fra planlægning til levering – helt gratis og uforpligtende.
| Number: | 05119 |
|---|---|
| Synsfri sammenkobling (kg): | 2000 |
| Vandtilslutning: | 3/4” Nito kobling |
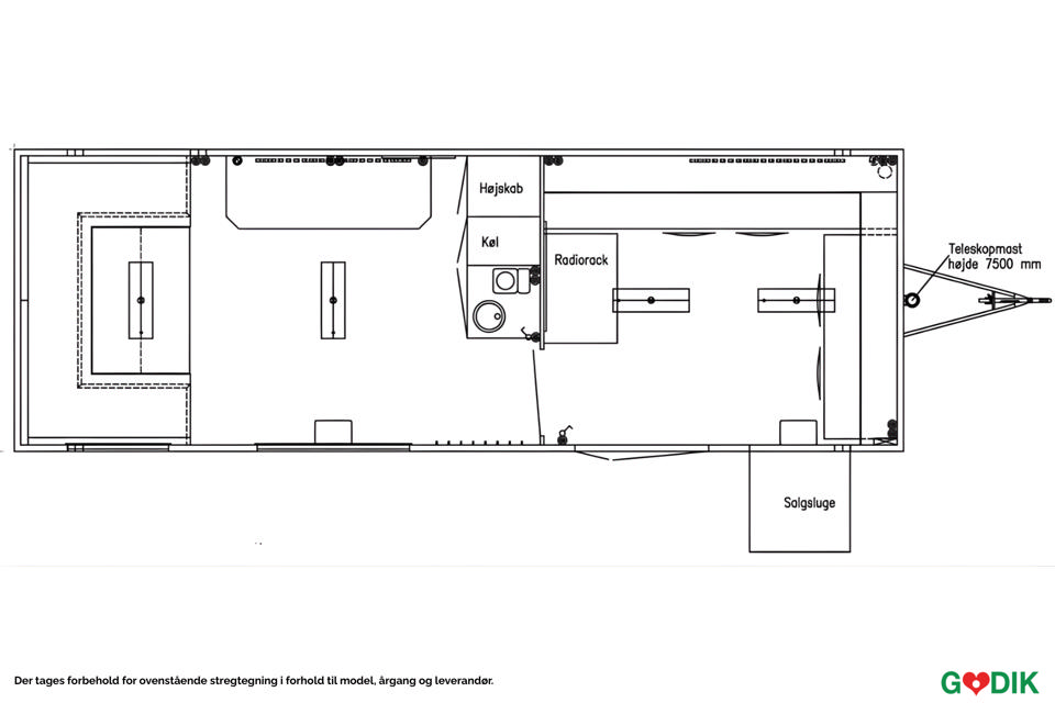
| Teleskopmast: 7 meter hydraulisk med LED lamper og antenne. Inventar på kontor Skrivebord m/ overhylder, 2 stole, opslagstavle, gulvgennemføring til kabler, klapbordplade m/overhylder, affaldsspand. Inventar i køkken/opholdsrum Køkkenhøjskab, flaskekøler, kaffemaskine, mikroovn, vask m/ afløbskværn, skrivebord, 3 stole, affaldsspand, hjørnesofa,dobbeltseng, 2 stk. 42" skærme, tv.Vognen er forberedt til kamera- og GPS digital radioovervågning. Medfølger 25 meter vanslange, afløbsslange og elkabel 400V/16A. | |
| Afløbskværn, antal: | 1 |
| Afløbskværn, pumpelængde (m): | 50 |
| Afløbstilslutning: | 1” Nito kobling |
| Antal håndvaske: | 1 |
| Kugletræk (mm): | 50 |
| Udvendigt mål, bredde (cm): | 250 |
| Udvendigt mål, højde (cm): | 295 |
| Udvendigt mål, længde (cm): | 730 |
En komplet produktionsvogn indrettet til sikkerheds- og overvågningsopgaver, klargjort til kamera- og GPS-overvågning. Med kontor, køkken, sofagruppe og område til udlevering af radioudstyr fungerer vognen som et fuldt udstyret basecamp-kontrolrum – med plads til både arbejde, koordinering og drift. |









